Дизайн-проект гардеробной в стиле современной классики

Заказать дизайн-проект интерьера квартиры/коттеджа/офиса в Сочи
- 3D ВИЗУАЛИЗАЦИИ концептуальных решений;
- 3D ВИЗУАЛИЗАЦИИ утвержденной концепции с реальными отделочными материалами, объектами освещения, мебелью и аксессуарами;
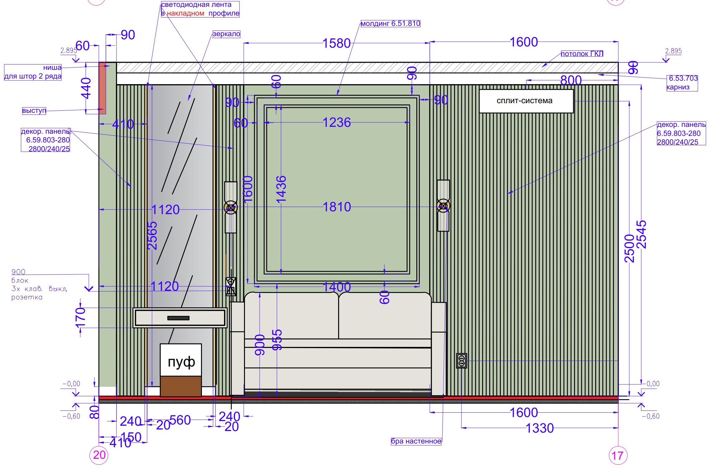
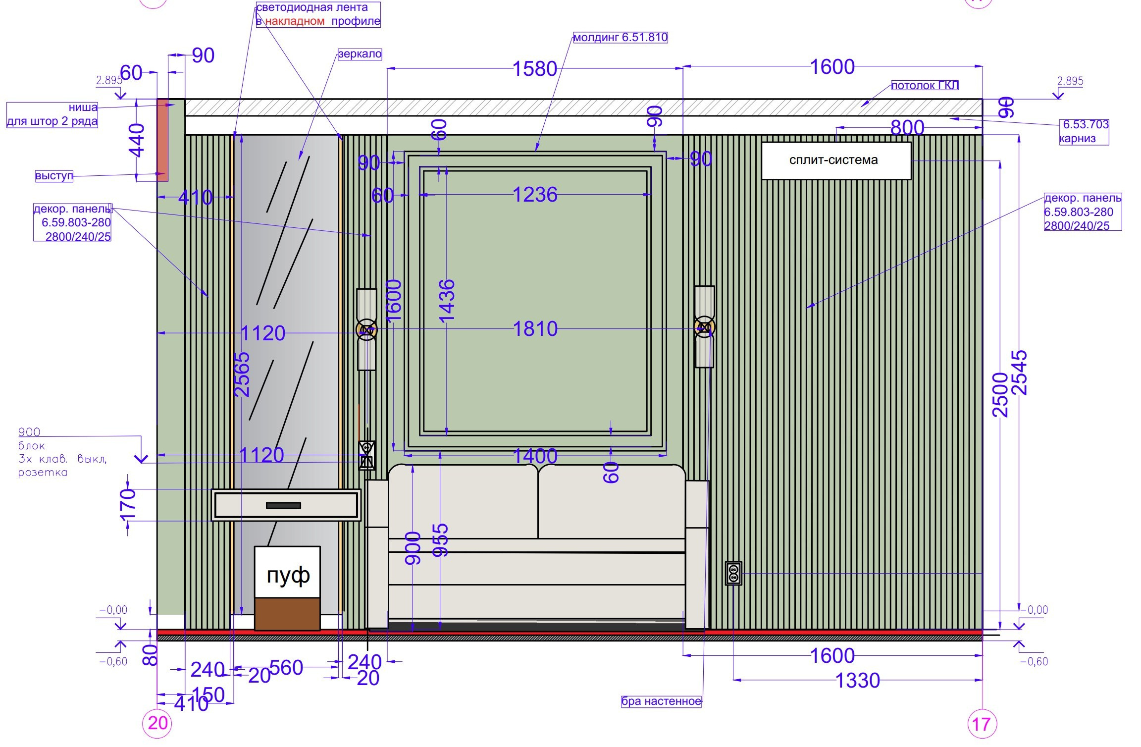
- Полный пакет рабочих чертежей;
- Ведомости и спецификации;
- КОМПЛЕКТАЦИЯ;
- Смета;
- Авторский надзор и консультации с мастерами по ремонту.






